5 pokoje
191.71 m²
5 477,02 zł/m2
FID-DS-333
Oblicz ratę kredytu

1 050 000 zł

Dom na sprzedaż
Oferta na wyłączność

Szczegóły oferty

Symbol oferty FID-DS-333
Powierzchnia 191,71 m²
Powierzchnia użytkowa [m2] 191,71 m²
Powierzchnia działki [m2] 400 m²
Liczba pokoi 5
Liczba sypialni 4
Rodzaj domu bliźniak
Technologia budowlana ceramiczny porotherm
Standard
Liczba pięter w budynku 1
Garaż na dwa samochody
Okna aluminium
Instalacje nowe
Balkon jest
Liczba balkonów 2
Liczba tarasów 2
Zagosp. działki częściowo zagospodarowana
Ukształtowanie działki płaska
Kształt działki prostokat
Pokrycie dachu blacha
Stan budynku do wykończenia
Ogrodzenie działki mieszane
Rok budowy 2025
Gaz na działce
Woda jest
Dojazd asfalt
Otoczenie zabudowa jednorodzinna
Ogrzewanie pompa ciepła
Umeblowanie puste
Odległość do komunikacji publicznej [m] 300 m
Odl. do sklepu [m] 500 m
Odl. do szkoły [m] 800 m
Odl. do przedszkola [m] 900 m
Tarasy taras
Prąd jest
Kanalizacja tak
Certyfikat energetyczny
Wskaźnik EP kwh/(m2 rok)
53
53
53
53
53
53
53
53
Wskaźnik EP: 53
kwh/(m2rok)
Wskaźnik EK: 23,58
kwh/(m2rok)
Wskaźnik EU: 44,29
kwh/(m2rok)
Sylwia Fidelus

Sylwia Fidelus

Licencjonowany pośrednik w obrocie nieruchomościami (licencja nr 26885)

Napisz wiadomość 53 Ofert

Opis nieruchomości

Na sprzedaż ostatni dostępny dom z I etapu (budynek 2B) o pow.191,71 wyjątkowego osiedla Hygge Park, położony w spokojnej, zielonej części miejscowości Wyry, Powiat Mikołowski.

To gotowy, oddany do użytkowania dom w zabudowie bliźniaczej usytuowany na działce o powierzchni 400,90  m². Kameralne, zamknięte osiedle, sąsiedztwo lasu i szybki dojazd do Mikołowa, Tychów i Katowic czynią tę ofertę idealną dla rodzin, które chcą połączyć komfort życia z bliskością natury

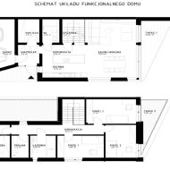
ROZKŁAD POMIESZCZEŃ

PARTER

  • dwustanowiskowy garaż z odpływem (wydzielone miejsce na motocykl/rowery) 39,04 M2
  • komunikacja 5,25
  • kuchnia 11,76
  • pom. techniczne 5,80 
  • salon/jadalnia 33,02
  • wc 4,06
  • wiatrołap 4,60

PIĘTRO

  • garderoba 4,80
  • komunikacja 18,09
  • łazienka 6,39
  • pokój 1 11,58
  • pokój 2 11
  • pokój 3 12,40
  • pralnia 3,22
  • sypialnia 14,61 

DODATKOWA PRZESTRZEŃ:

  • poddasze 69,66
  • taras 1 12,68
  • taras 2 7,43
  • ogród 181,43 
  • na podjeździe 4 miejsca postojowe

TECHNOLOGIA I STANDARD WYKONANIA

Dom wybudowany w technologii tradycyjnej z wysokiej jakości materiałów:

  • ściany wybudowane z pustaka ceramicznego,
  • ocieplenie styropianem 20–40 cm,
  • dach pokryty blachą na rąbek, ocieplony pianą PUR,
  • okna 3-szybowe PVC,
  • ogrzewanie: pompa ciepła/w całym domu ogrzewanie podłogowe włącznie z garażem,
  • ogrzewanie podłogowe w całym budynku (również w garażu),
  • przygotowana instalacja pod rekuperację (bez urządzenia),
  • żaluzje zewnętrzne antywłamaniowe w każdym oknie,
  • niestandardowe drzwi wejściowe 240 cm z lustrem weneckim,
  • możliwość zamontowania klimatyzacji (dodatkowo płatne)

Media: woda, prąd, kanalizacja, internet
Dojazd: asfaltowy, wewnętrzna droga z kostki betonowej
Ogrodzenie: metalowe
Strefa wejściowa i podjazd: kostka brukowa i ażurowa zgodnie z projektem

OSIEDLE HYGGE PARK

To zamknięta enklawa zaprojektowana z myślą o komforcie mieszkańców:

  • dwie zamykane bramy wjazdowe
  • wewnętrzny zielony skwer oddzielający strony osiedla
  • przestronne podjazdy oraz miejsca do parkowania ,,dla gości"
  • kameralna, bezpieczna atmosfera

LOKALIZACJA – WYRY to spokojna, zielona miejscowość w powiecie mikołowskim, ceniona za kameralny charakter oraz doskonałe skomunikowanie z aglomeracją śląską. W pobliżu znajdują się:

  • szkoła podstawowa – ok. 900 m
  • przedszkole – ok. 800 m
  • siłownia plenerowa
  • boisko i klub sportowy
  • tereny leśne – idealne na spacery i rower

Dojazd:

  • Mikołów – kilka minut
  • Tychy – ok. 10–15 minut
  • Katowice – ok. 20–25 minut

PODSUMOWANIE

Hygge Park w Wyrach to inwestycja dla osób, które cenią przestrzeń, bezpieczeństwo i nowoczesne rozwiązania technologiczne. To dom gotowy do wykończenia według własnej wizji – z ogromnym potencjałem aranżacyjnym i największą działką w całym etapie.

Zapraszam na prezentację.
Bez prowizji oraz bez podatku PCC

Lokalizacja nieruchomości

Kalkulatory

Kalkulator kredytowy

Wysokość raty

PLN
%

Kalkulator kosztów

Podatek od czynności cywilno-prawnych

Taksa notarialna
(opłata notarialna)

Wniosek o wpis do WKW

VAT od prowizji
agencji nieruchomości

Vat od taksy notarialnej
(opłaty notarialnej)

Prowizja agencji nieruchomości

Wypisy aktu notarialnego

Razem

Uwaga: mogą wystąpić dodatkowe opłaty za założenie księgi wieczystej oraz ustanowienie hipoteki.

PLN
PLN
PLN
PLN
PLN
PLN
%
PLN

Licencjonowany pośrednik w obrocie nieruchomościami (licencja nr 26885)

Proszę wprowadzić poprawne imię i nazwisko
Proszę wprowadzić poprawny numer telefonu
Proszę wprowadzić poprawny adres e-mail
Proszę zaznaczyć wymagane zgody
Rozwiąż równanie:
11 1
Niepoprawny wynik