4 pokoje
104.97 m²
5 706,39 zł/m2
1 piętro
FID-MS-331
Oblicz ratę kredytu

599 000 zł

Mieszkanie na sprzedaż
Oferta na wyłączność

Szczegóły oferty

Symbol oferty FID-MS-331
Powierzchnia 104,97 m²
Powierzchnia użytkowa [m2] 104,97 m²
Liczba pokoi 4
Liczba sypialni 3
Rodzaj budynku apartamentowiec
Technologia budowlana ceramiczny porotherm
Standard
Piętro 1
Liczba pięter w budynku 1
Garaż brak
Stan lokalu Do wykończenia
Okna nowe PCV
Instalacje nowe
Balkon jest
Liczba balkonów 2
Liczba tarasów 2
Rok budowy 2027
Widok na podwórko
Gaz na działce
Woda jest
Dojazd asfalt
Otoczenie zabudowa wielorodzinna
Ogrzewanie pompa ciepła
Umeblowanie puste
Odległość do komunikacji publicznej [m] 300 m
Odl. do sklepu [m] 500 m
Odl. do szkoły [m] 800 m
Odl. do przedszkola [m] 900 m
Tarasy taras duży
Usytuowanie dwustronne
Drzwi antywłamaniowe tak
Klucze tak
Sylwia Fidelus

Sylwia Fidelus

Licencjonowany pośrednik w obrocie nieruchomościami (licencja nr 26885)

Napisz wiadomość 53 Ofert

Opis nieruchomości

Na sprzedaż przestronny nowoczesny apartament o pow. 104,97 m2 zaprojektowany w minimalistycznym skandynawskim stylu, z z dwoma tarasami. Lokal jest usytuowany na pierwszym piętrze w budynku dwulokalowym z osobnym wejściem. 
Możliwość zaadoptowania poddasza lub wydzielenia antresoli (dodatkowa przestrzeń)                            
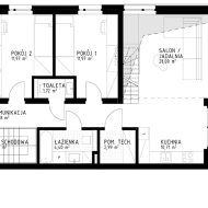
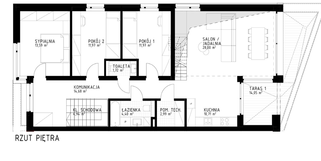
Termin oddania do użytku: lipiec/sierpień 2027                                                                                                Układ pomieszczeń:
parter (wejście do budynku):

wiatrołap 3,86 m2
pomieszczenie gospodarcze 4,46 m2
piętro : 
 
klatka schodowa 4,94 m2
salon/jadalnia 28 m2                                                                                                                              kuchnia  10,71 m2                                                                                                                                        pokój nr 1  11,97 m2
pokój nr 2  11,97 m2
sypialnia 13,59 m2
łazienka  4,40 m2 
toaleta  1,72 m2                                                                                                                                            pomieszczenie techniczne 2,99 m2
komunikacja 14,68 m2 
taras 19,74m2                                                                                                                                        taras 14,05 m2
powierzchnia działki 400,51 m2

Apartamenty będą oddawane do użytku w stanie deweloperskim:

  • ogrzewanie podłogowe w całym apartamencie
  • pompa ciepła 7 kW
  • rekuperacja (bez urządzenia)
  • duże okna 3-szybowe
  • nowoczesne drzwi wejściowe
  • tynki gipsowe, wylewki, komplet instalacji

To przestrzeń, którą urządzisz w stylu soft loft, japandi czy klasycznej skandynawskiej bieli – baza jest doskonała. 
Dwa miejsca parkingowe zewnętrzne wliczone w cenę                                                                           Lokalizacja, która daje oddech:                                                                                                    -prestiżowe, zamknięte osiedle w otoczeniu domów jednorodzinnych, z wewnętrznym zielonym skwerem i dwiema bramami wjazdowymi.
Blisko lasu, a jednocześnie blisko codzienności:

szkoła – 900 m
przedszkole – 800 m
sklepy i usługi w zasięgu kilku minut

Katowice – 19 km
Tychy – 12 km
Mikołów – 5 km
Klient nie płaci prowizji ani podatku PCC.

Lokalizacja nieruchomości

Kalkulatory

Kalkulator kredytowy

Wysokość raty

PLN
%

Kalkulator kosztów

Taksa notarialna
(opłata notarialna)

Wniosek o wpis do WKW

VAT od prowizji
agencji nieruchomości

Vat od taksy notarialnej
(opłaty notarialnej)

Prowizja agencji nieruchomości

Wypisy aktu notarialnego

Razem

Uwaga: mogą wystąpić dodatkowe opłaty za założenie księgi wieczystej oraz ustanowienie hipoteki.

PLN
PLN
PLN
PLN
PLN
%
PLN

Podobne oferty

Oferta na wyłączność

Mieszkanie na sprzedaż

Wyry

4 Pokoje 101 m2 6 425,74 zł/m2
Oferta na wyłączność

Licencjonowany pośrednik w obrocie nieruchomościami (licencja nr 26885)

Proszę wprowadzić poprawne imię i nazwisko
Proszę wprowadzić poprawny numer telefonu
Proszę wprowadzić poprawny adres e-mail
Proszę zaznaczyć wymagane zgody
Rozwiąż równanie:
18 4
Niepoprawny wynik